Energolux Energy E 4000-30,0 M3
Приточная установка Energolux Energy E 4000-30,0 M3
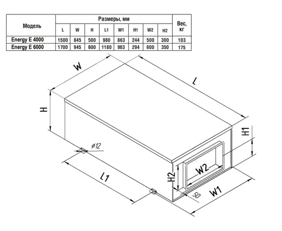
Приточная установка Energolux (Энерголюкс) Energy E 4000-30,0 M3 - полностью адаптирована для работы в российских условиях. Установка поставляется в комплекте со встроенным электрическим нагревателем и фильтром класса очистки EU5, что позволяет создавать комфортные условия в помещениях. Серия компактных приточных установок предназначена для вентиляции помещений различного назначения: коттеджей, магазинов, офисов, конференц-залов, школ и пр.
Особенности Energolux Energy E 4000-30,0 M3
- Легкое обслуживание.
- Встроенный электрический нагреватель.
- Фильтр степени очистки EU5.
- Корпус из оцинкованной стали с тепло-звукоизоляцией 50 мм из базальтовой минеральной ваты.
- Компактные размеры.
- Низкий уровень шума
- Производительность по воздуху до 6000 м3/ч.
Тип
Приточная установка
Тип нагревателя
- Электрический
Мощность нагревателя (кВт)
30
Рекуперация
Нет
Производительность (м³/ч):
4500
Производительность (м³/ч), max
4500
Уровень шума (дБ):
64
Класс очистки фильтров приток
EU5
Фильтр тонкой очистки
Нет
Канал
- Прямоугольный
Присоединительный размер воздуховодов (мм)
500x300
Шумоизоляция
Есть
Дополнительные характеристики
Установка
- Вертикальная
- Горизонтальная
- Подвесная
Цвет
Серый
Питание и защита
Напряжение (В)
400
Фазность
3
Частота тока (Гц)
50
Сила тока (А)
4,3
Производитель
Бренд
Energolux
Серия
Energy E
Родина бренда
Швейцария
Страна производитель
Китай
Гарантия
1 год
- Инструкция: Скачать / Посмотреть
Видео о Energolux Energy E 4000-30,0 M3
Отзывы о Energolux Energy E 4000-30,0 M3 от реальных покупателей
Отзывы не найдены
