Василий
Nevatom Дверь вентиляционная-2-1250*500-оц. утепл.
Дверь герметичная Nevatom 1,25 х 0,5 утепленная

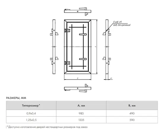
Дверь герметичная Nevatom 1,25 х 0,5 предназначена для установки в вентиляционных камерах. Производится в двух исполнениях: утепленная (с теплоизоляцией из минеральной ваты) и не утепленная. Стандартное исполнение – симметричное.
Размеры герметичной двери утепленной Nevatom 1,25 х 0,5


Видео о Nevatom Дверь вентиляционная-2-1250*500-оц. утепл.
Отзывы о Nevatom Дверь вентиляционная-2-1250*500-оц. утепл. от реальных покупателей
Данил
