Неватом RTK-380
Регулятор температуры Неватом RTK-380
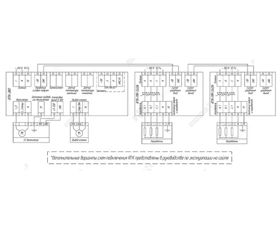
Неватом RTK-380 - регуляторы рассчитаны на работу в сетях с напряжением 220 В или 380 В. Они предназначены для совместного использования с электрическими нагревателем воздуха мощностью до 18,5 кВт и вентилятором в системе вентиляции. При этом есть возможность подключения до двух силовых модулей (только для RTK-380) для увеличения мощности нагревателя до 36 кВт.
Регуляторы обеспечивают поддержание заданного значения температуры воздуха в канале или в помещении путем управления электрическим нагревателем, изменяя его мощность. Нагрузка корректируется симисторным блоком таким образом, чтобы не создавать помех в сети. Переключения выполняются в момент, когда ток на нагревателе равен нулю.
Регуляторы позволяют контролировать скорость вращения вентилятора, тем самым обеспечивая изменение его производительности.
Устройства поставляются в компактном корпусе с типом защиты IP 20
Особенности конструкции Неватом RTK-380
Регуляторы RTK предлагаются в 4 вариантах комплектации:
- Без дополнительных опций
- WF — с возможностью беспроводного управления устройством
- RS — с опцией подключения цифрового датчика температуры и влажности по интерфейсу RS-485
- WF/RS — с обеими опциями сразу
- Каталог "Автоматика": Скачать / Посмотреть
- Декларация: Скачать / Посмотреть
- Инструкция: Скачать / Посмотреть
- Инструкция: Скачать / Посмотреть
- Пользовательское соглашения: Скачать / Посмотреть
- Руководство по эксплуатации: Скачать / Посмотреть
Видео о Неватом RTK-380
Отзывы о Неватом RTK-380 от реальных покупателей
Отзывы не найдены
