Неватом RTK-380-WF/RS
Регулятор температуры Неватом RTK-380-WF/RS
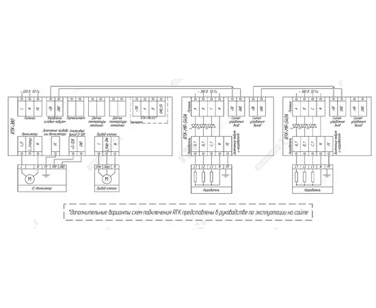
 Неватом RTK-380-WF/RS - регуляторы рассчитаны на работу в сетях с напряжением 220 В или 380 В. Они предназначены для совместного использования с электрическими нагревателем воздуха мощностью до 18,5 кВт и вентилятором в системе вентиляции. При этом есть возможность подключения до двух силовых модулей (только для RTK-380) для увеличения мощности нагревателя до 36 кВт.
Неватом RTK-380-WF/RS - регуляторы рассчитаны на работу в сетях с напряжением 220 В или 380 В. Они предназначены для совместного использования с электрическими нагревателем воздуха мощностью до 18,5 кВт и вентилятором в системе вентиляции. При этом есть возможность подключения до двух силовых модулей (только для RTK-380) для увеличения мощности нагревателя до 36 кВт. 
Регуляторы обеспечивают поддержание заданного значения температуры воздуха в канале или в помещении путем управления электрическим нагревателем, изменяя его мощность. Нагрузка корректируется симисторным блоком таким образом, чтобы не создавать помех в сети. Переключения выполняются в момент, когда ток на нагревателе равен нулю.
Регуляторы позволяют контролировать скорость вращения вентилятора, тем самым обеспечивая изменение его производительности.
Устройства поставляются в компактном корпусе с типом защиты IP 20
Особенности конструкции Неватом RTK-380-WF/RS
Регуляторы RTK предлагаются в 4 вариантах комплектации:
- Без дополнительных опций
- WF — с возможностью беспроводного управления устройством
- RS — с опцией подключения цифрового датчика температуры и влажности по интерфейсу RS-485
- WF/RS — с обеими опциями сразу
- Каталог "Автоматика": Скачать / Посмотреть
- Декларация: Скачать / Посмотреть
- Инструкция: Скачать / Посмотреть
- Инструкция: Скачать / Посмотреть
- Пользовательское соглашения: Скачать / Посмотреть
- Руководство по эксплуатации: Скачать / Посмотреть
Видео о Неватом RTK-380-WF/RS
Отзывы о Неватом RTK-380-WF/RS от реальных покупателей
Отзывы не найдены
 
 
 
 
 
 
 
 
 
 
 
 
 
 
 
 
 
 
 
 
 
 
 
 
 
 
 
 
 
 
 
 
 
 
 
 
 
 
 
 
 
 
 
 
 
 
 
 
 Осушители воздуха
            Осушители воздуха
         Рециркуляторы облучатели воздуха
            Рециркуляторы облучатели воздуха Мойки воздуха
            Мойки воздуха
         Санитайзеры
            Санитайзеры
         Очистители воздуха
            Очистители воздуха
         Увлажнители воздуха
            Увлажнители воздуха
         Диспенсеры дозаторы для мыла
            Диспенсеры дозаторы для мыла
         Аксессуары
            Аксессуары
         
 Холодильные сплит-системы
            Холодильные сплит-системы
         Морозильные камеры
            Морозильные камеры
         Морозильные лари
            Морозильные лари
         Холодильники
            Холодильники
         Холодильные шкафы-витрины
            Холодильные шкафы-витрины
         Шкафы фармацевтические
            Шкафы фармацевтические
         
 Стабилизаторы напряжения
            Стабилизаторы напряжения
         Зарядные станции
            Зарядные станции
         Электрические удлинители
            Электрические удлинители
         Освещение
            Освещение
         
 
 
 
 
 
 
 
 
 
 
 
 
 
 
 
 
 
 
 
 Лента перфорированная
            Лента перфорированная
         Метизы, заклепки
            Метизы, заклепки
         Саморезы
            Саморезы
         Шурупы
            Шурупы
         Анкерный крепеж
            Анкерный крепеж
         Метрический крепеж
            Метрический крепеж
         Такелажное оборудование
            Такелажное оборудование
         Скоба зажимная
            Скоба зажимная
         Скотч монтажный
            Скотч монтажный
         Теплоизоляция
            Теплоизоляция
         Уголки
            Уголки
         Узлы управления
            Узлы управления
         Фланцы
            Фланцы
         Хомуты
            Хомуты
         Шинорейка
            Шинорейка
         
 Строительная химия
            Строительная химия
         
 О компании
            О компании
         Оплата и доставка
            Оплата и доставка
         Обмен и возврат
            Обмен и возврат
         Сервисные центры
            Сервисные центры
         Отзывы
            Отзывы
         Сертификаты
            Сертификаты
         Оптовым покупателям
            Оптовым покупателям
         Поставщикам
            Поставщикам
         Наши клиенты
            Наши клиенты
         Бренды
            Бренды
         Новости
            Новости
         Статьи
            Статьи
         Подбор и расчёт кондиционера
            Подбор и расчёт кондиционера
         Установка кондиционеров
            Установка кондиционеров
         Обслуживание кондиционеров
            Обслуживание кондиционеров
         Вакансии
            Вакансии
         Реквизиты
            Реквизиты
         Контакты
            Контакты
         
    
             О нас
                        О нас
         Поставщикам
                        Поставщикам
         Оптовым покупателям
                        Оптовым покупателям
         Наши клиенты
                        Наши клиенты
         Отзывы
                        Отзывы
         Вакансии
                        Вакансии
         Реквизиты
                        Реквизиты
         Сервисные центры
                        Сервисные центры
         Новости
                        Новости
         Статьи
                        Статьи
         Подбор и расчёт кондиционера
                        Подбор и расчёт кондиционера
         Установка кондиционеров
                        Установка кондиционеров
         Обслуживание кондиционеров
                        Обслуживание кондиционеров
         
 
 
 
