Systemair Topvex SF02 EL 4,5 кВт

Приточная установка Systemair Topvex SF02 EL 4,5 кВт

Написать отзыв
Задать вопрос
NK01XT

  

Производительность (м³/ч), max900 Уровень шума (дБ):53,3 БрендСистемэйр СерияTopvex SF Гарантия3 года

Приточная установка Systemair Topvex SF02 EL 4,5 кВт

Все характеристики

389 180 
+
Отложить
Есть вопросы или нужен счёт?
Наши преимущества
  • - Официальный дилер более 110 брендов
  • - Только оригинальная заводская продукция
  • - Прямые поставки без посредников
  • - Рекомендованные цены производителя
  • - Официальная заводская гарантия
  • - Более 55 000 позиций в наличии и под заказ
  • - Технический паспорт, сертификат
  • - Возврат и обмен
Варианты оплаты
Доставка

Приточная установка Systemair Topvex SF02 EL 4,5 кВт

Приточная установка Systemair Topvex SF02 EL 4,5 кВт купить в ИркутскеПриточная установка Systemair (Системэир) Topvex SF02 EL 4,5 кВт - корпус агрегата представляет собой сэндвич-конструкцию с двух сторонней обшивкой из листовой стали с алюцинковым покрытием, AZ 185, с тепло-звукоизоляцией из минеральной ваты толщиной 50мм. Мешочный фильтр M5 с большой фильтрующей поверхностью обеспечивает длительный промежуток времени между заменами и низкие перепады давления. Агрегаты Topvex SF доступны к заказу в комплектации с электрическим нагревателем, в двух вариантах мощности на выбор, для типоразмеров SF02–SF06 или с водяным нагревателем, так же с двумя разными по мощности нагревателями, для типоразмеров SF02 – SF12.

Удобный доступ к клеммной коробке, которая включает в себя все электрические соединения, облегчает сервисное и техническое обслуживание агрегата.

Особенности Systemair Topvex SF02 EL 4,5 кВт

  • Диапазон расходов: 529-900 м³/ч
  • Класс защиты корпуса: IP44
  • Тип нагревателя: Электрический
  • Мощность электрического нагревателя: 4,5 кВт
  • Частота вращения: 2814 об/мин
  • Максимальная температура перемещаемого воздуха 70 °C
  • Защита двигателя: Integral
  • Класс изоляции: B
  • Уровень звукового давления: 53,3 дБ (А)
Тип
Приточная установка
Тип нагревателя
  • Электрический
Мощность нагревателя (кВт)
4.5
Рекуперация
Нет
Производительность (м³/ч):
900
Производительность (м³/ч), max
900
Уровень шума (дБ):
53,3
Класс очистки фильтров приток
М5
Фильтр тонкой очистки
Нет
Канал
  • Круглый
Присоединительный размер воздуховодов (мм)
200
Дополнительные характеристики
Установка
  • Горизонтальная
  • Подвесная
Цвет
Серый
Питание и защита
Напряжение (В)
400
Фазность
3
Частота тока (Гц)
50
Сила тока (А)
1,17
Класс пылевлагозащиты
IP 44
Габариты и вес
Вес (кг)
54
Габариты прибора (мм)
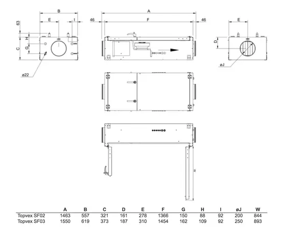
321х557х1463
Производитель
Бренд
Системэйр
Серия
Topvex SF
Родина бренда
Швеция
Страна производитель
Россия
Гарантия
3 года
Найти похожие

 

Видео о Systemair Topvex SF02 EL 4,5 кВт

    

Отзывы о Systemair Topvex SF02 EL 4,5 кВт от реальных покупателей

Отзывы не найдены

  Артикул Мощность нагревателя (кВт) Производительность (м³/ч) Цена  
Systemair Topvex SF12 EL 35,0 кВт, Мощность нагревателя (кВт): 35, Производительность (м³/ч): 5400
FV54QU
35 5400 783 200 
+
Systemair Topvex SF12 EL 45,0 кВт, Мощность нагревателя (кВт): 45, Производительность (м³/ч): 5400
SW19AZ
45 5400 799 700 
+
Systemair Topvex SF02 EL 4,5 кВт, Мощность нагревателя (кВт): 4,5, Производительность (м³/ч): 900
NK01XT
4,5 900 389 180 
+
Systemair Topvex SF08 EL 14,0 кВт, Мощность нагревателя (кВт): 14, Производительность (м³/ч): 5400
KZ88NK
14 5400 737 000 
+
Systemair Topvex SF02 EL 9,0 кВт, Мощность нагревателя (кВт): 9, Производительность (м³/ч): 900
JV76HN
9 900 407 770 
+
Systemair Topvex SF08 EL 27,0 кВт, Мощность нагревателя (кВт): 27, Производительность (м³/ч): 5400
QM38KZ
27 5400 752 400 
+
Systemair Topvex SF04 EL 20,9 кВт, Мощность нагревателя (кВт): 20,9, Производительность (м³/ч): 900
US08TC
20,9 900 581 900 
+
Systemair Topvex SF04 EL 10,5 кВт, Мощность нагревателя (кВт): 10,5, Производительность (м³/ч): 1728
QH43TN
10,5 1728 554 400 
+
Возможно, вас это заинтересует
  • Похожие товары
  • Недавно просмотренные
Доставка по Иркутску, Иркутской области и России.

Бесплатная доставка по Иркутску и до транспортной компании от 5 000 руб.

Официальный представитель более 110 брендов.

Прямые поставки без посредников, низкие цены и официальная гарантия производителя.

Более 55 000 позиций в наличии и под заказ.

Технический паспорт, сертификаты. Работаем по ЭДО. Персональный менеджер. Корректный подбор оборудования.